Stadtbibliothek Biel

Projektinfo
Wettbewerb: 1983
Ausführung: 1988-1991
Bauherrschaft: Einwohnergemeinde Biel, Baudirektion Hochbauamt
Projektleiter: Reinhard Briner
Verfasser: Martin Bauer
Peter Kupferschmied
Michael Herzog
Bauingenieur: Dr. Mathys+Wyssler, dipl. Bauing. ETH/SIA

Beschrieb

Am Anfang einer mehrjährigen Planungphase stand 1982 der Architekturwettbewerb "Reitschulareal Biel". Es galt die Raumbedürfnisse von Bibliothek und Post zu befriedigen sowie für die unglückliche städtebauliche Situation - entstanden durch den Neubau der Mobiliarversicherungsgesellschaft - eine gültige Lösung zu finden.

Das Siegerprojekt  "Halux" übernimmt in pragmatischer Weise das bestehende städtebauliche Muster der um die Mitte des 19. Jahrhunderts erfolgten Stadterweiterung östlich der Befestigungsgräben der Neustadt und teilt das Areal in selbstständige Baugevierte unter Beibehaltung der Reitschul- und der Emile Schülerstrasse.

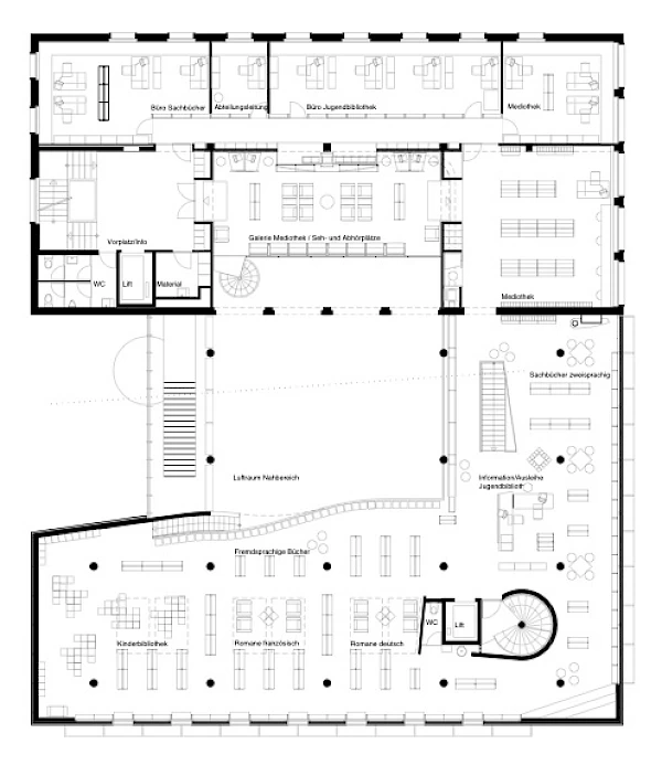
Mittelpunkt der Anlage und gleichzeitig verbindendes Element zwischen Alt- und Neubau ist der zweigeschossige Bibliothekssaal.
Auf diesen "Lichthof", der von einer klimatisch optimierten Shedverglasung, überspannt wird,  orientieren sich sämtliche Publikumsräume der Bibliothek. Das bestehende Gebäude wurde in seiner äusseren Erscheinung und der inneren Struktur weitgehend erhalten und saniert. Grössere Eingriffe erfolgten durch den Einbau eines behindertengerechten Liftes und der Anpassung der lichten Raumhöhe von 2.15 m des ursprüngliche Magazins im zweiten Obergeschoss an die Raumbedürfnisse einer Büronutzung.