Staatskanzlei Postgasse 68

Projektinfo
Ausführung 1. Etappe 1991-93
Ausführung 2. Etappe: 1994-96
Baukosten BKP 2: CHF 11'195'000.-
Baukosten Fr./m3 BKP 2: CHF 562.-
Gebäudevolumen SIA 416: 19910 m3
Architektur: Martin Zulauf
Martin Bauer
Reinhard Briner
Urs Mataré
Peter Kupferschmied
In Zusammenarbeit mit:

Kurt Gossenreiter

Kunst am Bau Ueli Berger
Bauherrschaft: Baudirektion Kanton Bern

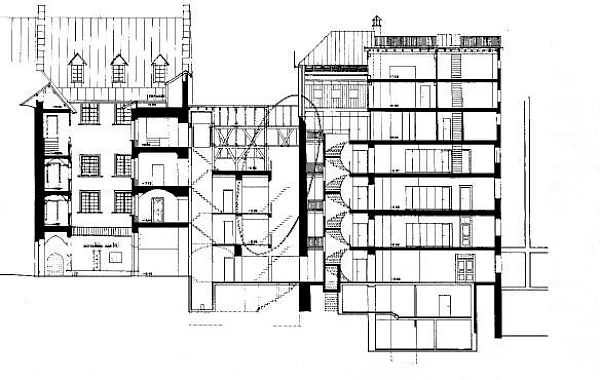
Die Staatskanzlei befindet sich seit dem 16. Jahrhundert an der Postgasse neben dem Rathaus. Neben dem Staatskanzleigebäude Postgasse 72 belegt sie heute auch die Räume der ehemaligen Staatsdruckerei und das frühere Wohnhaus Postgasse 68. Diese Gebäude werden in 2 Etappen renoviert.

 

Aufgabe

Umfassende Sanierung der Staatskanzlei mit dem Hauptziel, die an den Standort neben dem Rathaus gebundene Nutzung zu verdichten. Die Verdichtung wurde erreicht durch auslagern  von Nebennutzungen in neu ausgebaute Keller- und Dachräume und durch die Reorganisation der Arbeitsplätze. Ein zweites Hauptanliegen bestand in der verbesserten Erschliessung und Orientierung für Nutzer und Besucher durch zwei neue Lifte und einem zentralen Zugang für alle drei Häuser. Gleichzeitig wurde die im Laufe der Zeit durchlöcherte Brandmauerstuktur wiederghergestellt und die Eigenständigkeit der Gebäude gestärkt.

 

Beschrieb

100 Arbeitsplätze in 1er bis 3er Büros. 2 Dienstwohnungen, 2 Bibliotheken, Konferenzraum mit Simultanübersetzung. Druckerei und Cafeteria in neuem Anbau Nord. Einbau von 2 Liften, Ausbau aller Dachgeschosse. Neue Unterkellerung der Gebäude Nr. 68 und 70. Vollständige Erneuerung der haustechnischen Anlagen. Alle Parkettböden umfassend saniert und ergänzt. Die notwendigen statischen Sanierungsmassnahmen strukturgerecht als Zimmermanns- oder Metallbaukonstruktionen ausgeführt. 2 besonders wertvolle Interieurs restauriert.

 

1. Etappe Postgasse 68 (1991–93)

Der Ausbau der drei Dachgeschosse und eine zweigeschossige Unterkellerung schafften räumliche, die Unterteilung übergrosser Räume die strukturelle Voraussetzung für die Arbeitsplatzverdichtung. Der nordseitige Anbau ermöglichte alle publikumsorientierten Abteilungen im Erdgeschoss zusammenzufassen.

Durch den Lifteinbau in der zentralen Halle wurde die Gebäudestruktur minimal tangiert. Die Verlegung der WCs in diesen Bereich erlaubte die Freilegung des Treppenturmes.
Beim Umbau konnte der historische Fussgängerdurchgang von der Postgasse an die Postgasshalde wieder freigelegt werden. 

 

2. Etappe Gebäude Nr.70/72

Die 1938 eingebaute Splitlevel-Treppenverbindung der Gebäude Nr. 70+72 wird redimensioniert, so dass ein gemeinsamer Lift Platz findet. Das Dachgeschoss Nr. 70 wird zur Staatskanzlei-Bibliothek ausgebaut. Im 3. OG Nr. 72 ist ein Konferenzraum mit Simultanübersetzungsanlage geplant. Neu sind im Gebäude Nr. 72 auch temporäre Arbeitsplätze und Serviceeinrichtungen für den Grossen Rat vorgesehen.

 

Lenbrunnen aus 13. Jahrhundert

Bei Baubeginn wurden Reste des mittelalterlichen Lenbrunnens entdeckt (älteste Datierung 1252). Dies führte zur intensiven Zusammenarbeit mit dem archäologischen Dienst des Kantons. In der Folge wurde der Brunnenraum als archäologischer Schauraum ausgebaut und der historische  Zugang von der Postgasse zum Aarehang wieder für das Publikum geöffnet Die ganze Sanierung erfolgte im engen Kontakt mit der städtischen Denkmalpflege. Vielfache Projektanpassungen sind eine naturgemässe Begleiterscheinung beim Umbau historischer Bausubstanz. Die häufig vorerst verborgenen Gegebenheiten der Bauten führen vielfach zu Umstellungen – gleichzeitig erleichtern sie diese auch durch die erstaunliche Flexibilität ihres anpassungsfähigen und nachhaltigen konstruktiven Aufbaus.

Der Umbau der Staatskanzlei wurde 1996 mit dem Dr. Jost Hartmann Preis ausgezeichnet.