Herrengasse 36, Bern

Projektinfo
Öffentlicher Wettbewerb: 2005
Veranstalterin: Stadt Bern
Verfasser: Reinhard Briner
Martin Zulauf
Lorenz Frauchiger

 

Kernel

 

neu – alt – neu . . .

Ein neubarockes Schulhaus in der Altstadt – teilausgekernt, geprägt von bereits angejahrten Interieurs umbauen für heutige Wohnansprüche: was zählt ?

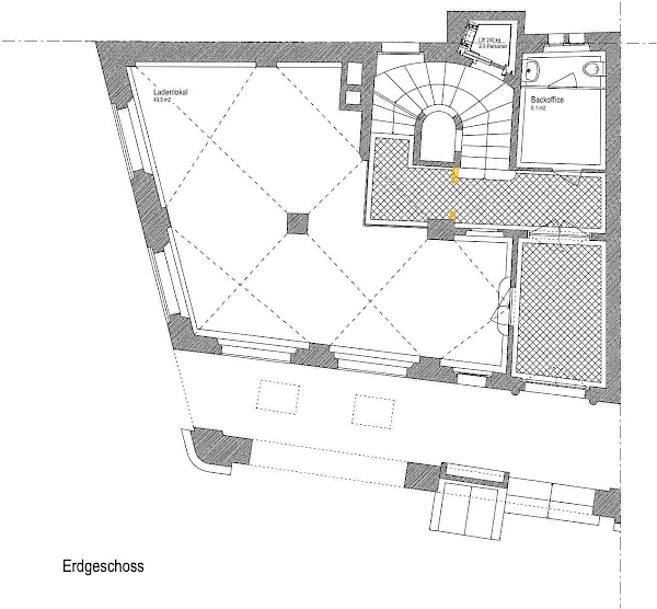
  1. Eingang und Treppenhaus sind intakt und von hoher Qualität. Stilgerechte Renovation.
  2. Die grossen Räume übereck sind einmalige Vorgaben für Altstadtwohnungen. Raumwirkung optimal entfalten.
  3. Im Innenausbau liegt, von Einzelelementen abgesehen, kein Wert an sich. Wo bautechnisch nötig, aber auch zugunsten des räumlichen Ganzen ersetzen.
  4. Im EG und besonders im UG findet sich historische Substanz. Ohne neue Eingriffe respektieren.
  5. Dasselbe gilt für Fassaden und Dachlandschaft. Hier nicht weil sie alt oder besonders wertvoll sondern weil sie sind.

Bei der Umformung des mehrfach Verwandelten besteht ein weiter Spielraum. In einem Punkt möchten wir ihn nicht nutzen, da wir glauben, dass der Lifteinbau in der verlangten Form das Ganze beeinträchtigt.

 

Lifteinbau

Der vorgeschlagene Lift im Abortturm ist zwar nicht rollstuhlgängig. Wir hoffen, dass sich Vergleich die Vorteile für Wohnungen und Gebäude deutlich zeigen. Den Komfortansprüchen genügt der Kleinlift. Im EG und UG schont er die historische Substanz. Vor allem aber ermöglicht diese Anordnung die optimale Nutzung der gegebenen Wohnflächen.

 

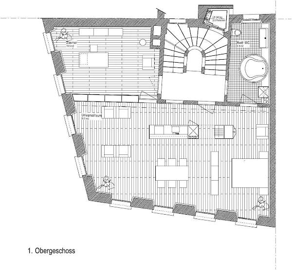
Wohnräume

Angeboten werden grosszügige und auch langfristig flexibel nutzbare Räume. Ein freistehendes Raumelement enthält die fixen Kücheninstallationen, die übrigen Raumteiler sind frei varierbar. Der Schlafbereich liegt wahlweise im abgetrennten Raum oder neben dem Bad. Das Bad ist in der modernen Stadtwohnung ein wichtiger Raum mit entsprechendem Platzbedarf.

Das 2. Dachgeschoss ist stark introvertiert. Es eignet sich als Atelierraum kombiniert mit den Wohnräumen im 1. Dachgeschoss

 

Ausbau – Materialien

Aussenwandteile werden mit mineralischem Isolationsputz geglättet- Täferteile verbleiben im Fensterbereich. Rückbau der Storenkasten. Neue Kastanienparkettböden auf schallisolierendem Trockenestrich. Im Bad Plattenbeläge mit Bodenheizung. Raumteiler Glas – Stahlblech – Stein.