Altersheim Burgdorf

Projektinfo
Öffentlicher Wettbewerb: 2006
Veranstalterin: Burgergemeinde Burgdorf
Geschossfläche GF SIA 416: 5’324 m2
Nutzfläche NF: 3’627 m2
Gebäudevolumen SIA 416: 16’214 m3
Verfasser: Reinhard Briner
Lorenz Frauchiger
Martin Zulauf

 

Stadtmauer im Focus

In der aktuellen Planung zur Aufwertung der südlichen Altstadt spielt die Stadtmauer eine zentrale Rolle. Sie soll wiederhergestellt und gebührend in Szene gesetzt werden. Die Gestalt des vorgelagerten Grabenbereichs prägt das Bild entscheidend mit.

Dies führt uns zum Vorschlag, den Burgerheim-Neubau im Osten des Perimeters als kompaktes Volumen anzuordnen, das einen grosszügigen Aussenraum gegen Westen freilegt. Er dient je hälftig als Parkgarten des Heims und als öffentlicher Grünraum, der eine attraktive Verbindung zur Grabenpromenade schafft. Die terrassierte Gestaltung des Grabenbereichs lehnt sich an das historische Vorbild an und erlaubt gleichzeitig, den allgemein zugänglichen vom privaten Park zu trennen.

Nach Osten tritt der Neubau in Dialog mit der Baugruppe am Juvetgässli. In diesem Bereich wird die Erschliessung zusammengefasst und der Hauptzugang angeordnet. Nach Norden verbindet eine Passerelle im 3. Obergeschoss das Burgerheim direkt mit der Grabenpromenade. Die wiederhergestellte Stadtmauer bleibt auf ganzer Länge frei – der Mauerfuss liegt wieder auf seinem historischen Niveau.

 

Flexibel + präzis

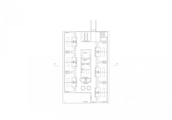
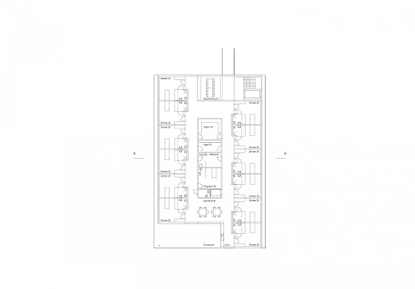
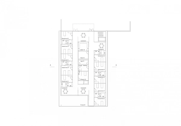
Der flexibel strukturierte Baukörper ist anpassungsfähig für künftige Weiterentwicklungen des Raumprogramms. Seine Grundstruktur – Gemeinschaftsräume im Gartengeschoss, Wohngruppen auf vier Obergeschossen – passt zur städtebaulichen Setzung und optimiert gleichzeitig die Wohnqualität für die Betreuten.

Alle Zimmer sind nach Osten oder Westen ausgerichtet, die Gruppenräume Richtung Aussenterrasse und Fernsicht nach Süden. Im 1. Obergeschoss besteht für beide Gruppen für demente Betreute ein direkter Zugang zum Aussenraum. Ein Geschoss tiefer sind die allgemeinen Gemeinschaftsräume, nach Westen orientiert, optimal an den Park angeschlossen.

Die Dienst- und Logistikräume sind mehrheitlich im Sockelgeschoss untergebracht und durch Oblichtfenster belichtet. Hier erfolgt die Anlieferung und der zentrale Warenumschlag. Zwei Lifte sorgen für direkte Verbindungen zu den Gruppen,  zum Gemeinschaftsgeschoss sowie zu Einstellhalle und Lager im 2. Untergeschoss.