Siedlung Krippenstrasse

Projektinfo
Projektwettbewerb auf Einladung: 2007
Veranstalterin: Stadt Bern
Architektur / Bauleitung: Reinhard Briner
Lorenz Frauchiger
Martin Zulauf
Sandra Blaser

 

Quartierintegration

Übergeordnetes Ziel des Projektes war die Integration der neuen Siedlung in das Holligenquartier. Städtebaulich erfolgt die Einbindung durch eine durchlässige Kammstruktur, welche den oberen und unteren Quartierteil zusammenführt. Architektonisches Bindemittel bilden die Aussenräume der Siedlung. Soziologisch sucht das Projekt eine Stärkung und Aufwertung der Nachbarschaft, indem es überwiegend grosse Familienwohnungen anbietet, welche in der Siedlung Ausserholligen heute fehlen. Mit der Übernahme des Mitsprachemodells dieser Siedlung wird eine zusätzliche Integrationsmöglichkeit für die neuen MieterInnen angeboten.

 

Architektur

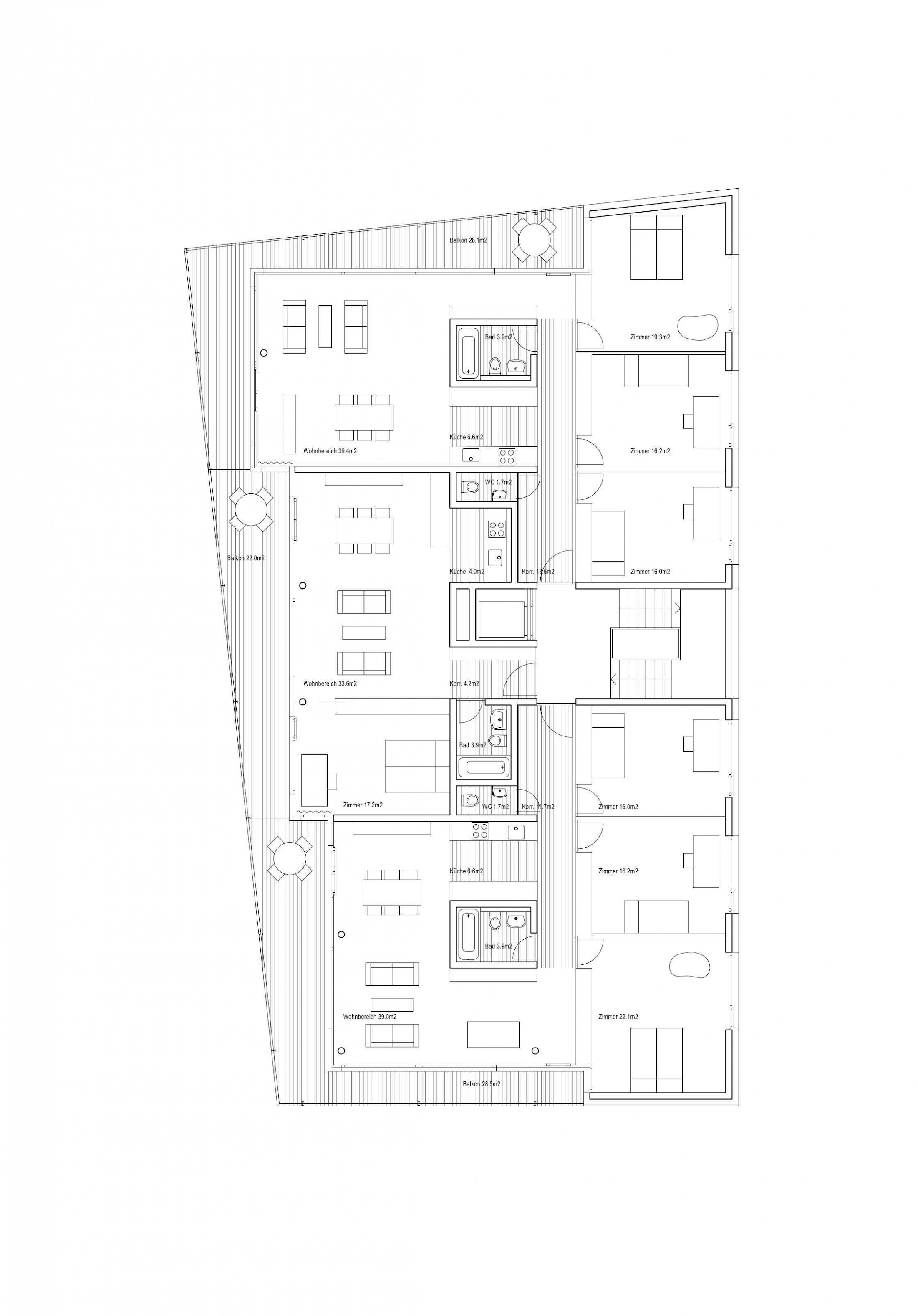
Die Gliederung in einen zweigeschossigen Sockel  und drei abgesetzte Obergeschosse inszeniert die Hanglage. Das vorgezogene untere Sockelgeschoss schafft einen grosszügigen und gut besonnten Aussenraum auf der Ebene des 1. Obergeschosses. Auf der Seite Krippenstrasse liegen die Obergeschosse auf der Hangkante auf. Die durchlaufend vorgehängte Balkonzone gewährleistet sommerlichen Wärmeschutz und Privatheit.

 

Wohnungen

Die meisten grossen Wohnungen – gut 3/4 insgesamt – sind dreiseitig orientiert. Durch nichttragende Innenwände bleibt die Raumeinteilung langfristig flexibel und kann bei der Erstvermietung durch die NutzerInnen mitbestimmt werden. Neben klassischen Haushalten können so auch Gruppenwohnungen für Erwachsene mit übergrossen Individualräumen eingerichtet werden.

Jedes Gebäude bildet eine Hausgemeinschaft, der im Eingangsbereich eine Fläche zur gemeinsamen Nutzung zu Verfügung steht, und die ihren Siedlungsaussenraum gemeinsam nutzt und gestaltet.

 

Ökonomie

Die budgetierten Jahresmiete beträgt im Mittel Fr. 215 pro m2 Nettofläche. Die grossen Wohnflächen bewirken zwangsläufig auch höhere Mieten. Wir sind jedoch überzeugt, dass es sowohl wirtschaftlich wie oekologisch gesehen nachhaltig ist, grosse Wohnungen anzubieten, wenn gleichzeitig sichergestellt wird, dass sie von Mehrpersonenhaushaltungen genutzt werden.