Freiburgstrasse 52, Bern

Projektinfo
Baujahr: Stock 1635-40, Mietshaus 1837-38
Denkmalpflege: erhaltenswert
Ausführung: 2006-2007
Bauvolumen: 2’100m3
Kosten BKP 2: CHF 1.98 Mio, 868.-/m3
Architektur / Bauleitung: Lorenz Frauchiger
Bauherrschaft: WOK Lorraine AG, gemeinnütziger Wohnbauträger SVW
Baurechtsgeberin: Einwohnergemeinde Bern
Finanzierung: ABS Olten

 

Bestand

Mit dem Erlass des Bebauungsplans Freiburgstrasse/Güterstrasse im Jahre 1943 wurde das Gebäude Nr. 52 faktisch zum Abbruchobjekt. Dementsprechend hatte die Stadt Bern als Eigentümerin seit 60 Jahren abgesehen vom dringlichsten Unterhalt keine Investitionen mehr vorgenommen. Das hatte aus Sicht der Denkmalpflege den positiven Effekt, dass das Gebäude in den letzten ca. 120 Jahren kaum verändert worden war. Andererseits führte dies zu dem seit einiger Zeit sehr schlechten baulichen Zustand, was sich auch in der Einstufung des Gebäudes als Abbruchobjekt bei der Liegenschaftsverwaltung der Stadt widerspiegelte.

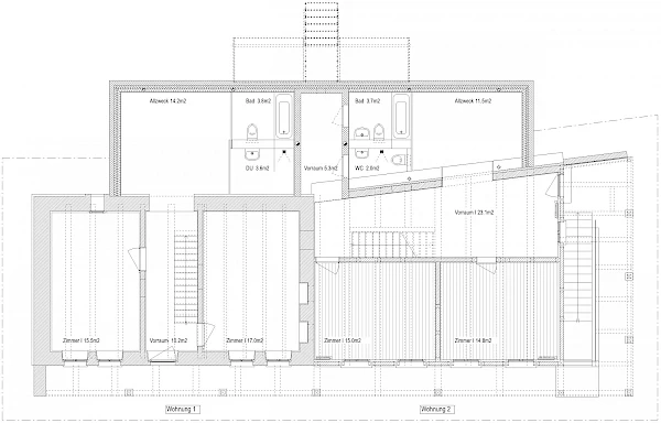
Im und über dem ältern Hausteil fanden sich vor dem Umbau drei 2-Zimmerwohnungen, die über die südseitigen Lauben vor den 1-Zimmerwohnungen des jüngern Teils im Osten erschlossen waren. Abgesehen von den WC-Zugängen war die Brandmauer zwischen den Hausteilen über alle drei Geschosse intakt. Der durchgehend offene Dachstock wurde in einem Zug errichtet. Die ursprünglich gemeinsamen Aborte auf der Ostlaube wurden 1974 durch je ein WC pro Wohnung ersetzt. Bäder fehlten, geheizt wurde mit Holzöfen. Den Zimmern vorgelagert war  ein Eingangs- / Küchenraum mit Ausguss. Unterkellert ist nur der jüngere Hausteil.

Das Gebäude verfügt über einen relativ grossen und attraktiven Umschwung, der allerdings nordseitig durch den 1924 erstellten, langen Holzschopf entzweigeschnitten ist.

Die Einfügung in den im Laufe der Zeit vollständig umgestalteten Quartierkontext ist zwangsläufig nicht optimal, da keines der später errichteten Gebäude auf den Altbau, dessen Weiterbestand nicht geplant war, in Massstab, Ausrichtung und Gestaltung Rücksicht nimmt und weil kein Gebäude des ursprünglichen Ensembles mehr steht Verschärft wurde die isolierte Stellung der Nr. 52 durch den kontinuierlichen Aus- und Neubau der umliegenden Strassen.

 

Projekt

Der Altbau wird umfassend, aber sanft und unter möglichster Schonung der Substanz saniert. Brandmauer, Lauben, Aussenwände und Böden bleiben unverändert, ebenso der Grossteil der Innenräume mit ihrer Ausstattung. Die Fenster werden ersetzt und eine zeitgemässe Haustechnik (Heizung, Sanitär, Elektro, Minergielüftung) neu installiert. Die Neuinstallationen werden soweit möglich im neuen Anbau zusammengefasst, damit die Altbausubstanz minimal tangiert wird. Das bestehende Dach wird isoliert.

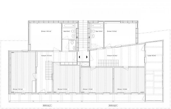
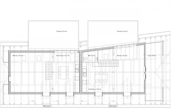
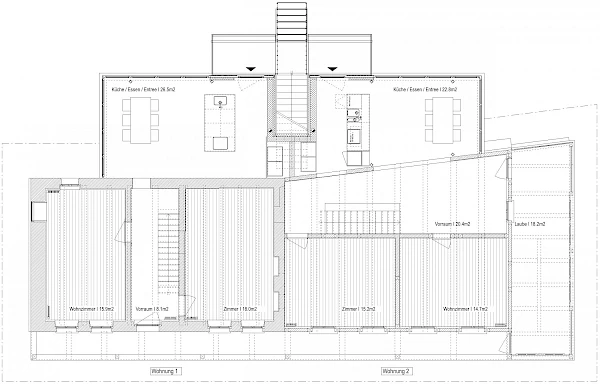
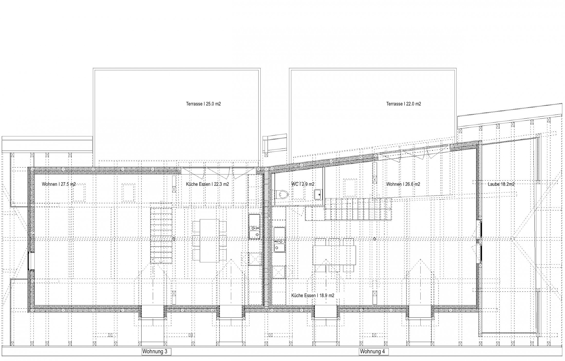
Die Erschliessungslauben südlich vor den Wohnräumen sind mit den heutigen Wohnbedürfnissen unvereinbar. Deshalb wird auf der Nordseite eine neue Treppe angeordnet, die Lauben dienen künftig als private Vorzone. Die Organisation von vier zweigeschossigen Wohneinheiten ermöglicht die Erhaltung der Brandmauer und reflektiert die Baugeschichte des Gebäudes, dessen älteste Teile wieder eine Nutzungseinheit bilden.

Durch seine Lage im Quartier und seinen grosszügigen Umschwung eignet sich das Gebäude Nr. 52 gut für Familienwohnungen. Der zweigeteilte nördliche Anbau schafft dafür die räumlichen Voraussetzungen. In ihm sind aus denkmalpflegerischen und technischen Gründen alle Sanitär- und Serviceräume untergebracht, sowie je ein Individualraum für die kleineren Wohnungen im 2. Obergeschoss /Dachgeschoss.

Die Süd- und Ostfassade werden mitsamt der vorgelagerten Laubenschicht sorgfältig instand gestellt. Auch die Westfassade wird nur geringfügig verändert, so dass das Gebäude auf drei Seiten und aus allen öffentlichen Sichtachsen das historisch gewachsene Bild zeigt. Der nördliche Anbau ist so weit hinter den Fassadenfluchten zurückversetzt, dass er im Strassenraum kaum in Erscheinung tritt und sich dem bestehenden Volumen unterordnet. Die neue Erschliessungstreppe unterteilt ihn der Struktur des Altbaus entsprechend in zwei Volumen. Zusammen mit der vertikalen Unterteilung in Sockel, transparentes Eingangsgeschoss und körperhaftes Obergeschoss entsteht ein kleinmassstäblich differenziertes Gesamtbild mit gleichgewichtiger Betonung von Horizontalen und Vertikalen, das die Gestaltungsmerkmale des Altbaus aufnimmt, ohne sich anzubiedern.

Dreiseitig bleibt die Umgebungsgestaltung im wesentlichen unverändert, die alte Pflästerung und der Garten im Süden bleiben erhalten. Im Norden ermöglicht der Abbruch des Holzschopfs eine Aufwertung des Aussenraums, von der auch die benachbarte Liegenschaft Weyermannsstrasse 44 profitiert. Zugunsten dieser Verbesserung wird auf die baurechtlich mögliche Anordnung von 4 Parkplätzen entlang der Parzellenfläche verzichtet.