Rustico, Valle di Lim

Projektinfo
Auftrag: Direktauftrag
Bauherrschaft: Privat
Sanierung: 2021
   
Planung:

Joris Rothenbühler

 

 

Ausgangslage

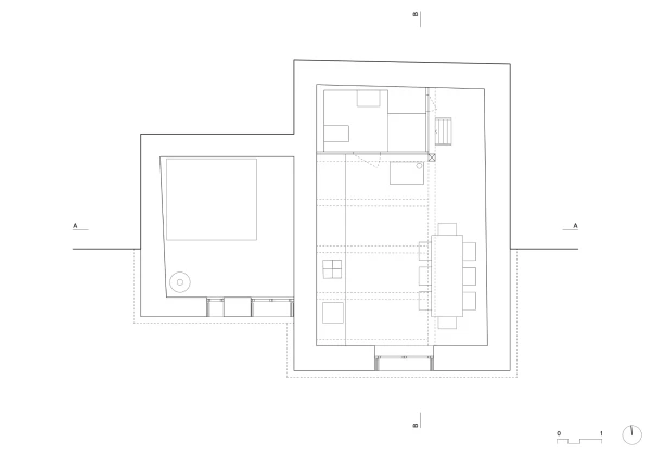
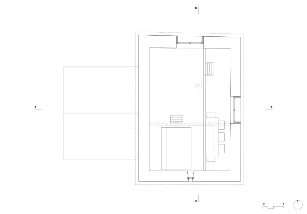
Das aus lokalem Bruchstein errichtete ehemalige Stallgebäude liegt auf 727 m ü. M. auf dem Monti di Ramigoi bei Claro - eingebettet in die charakteristische Kulturlandschaft des Tessins. Wie viele ehemals landwirtschaftlich genutzte Bauten in der Region steht auch dieses Gebäude unter Schutz: Die typischen Gneismauern und Steindächer dürfen weder verändert noch entfernt werden, und bestehende Öffnungen müssen in ihrer ursprünglichen Form erhalten bleiben.

 

Konzept

Die das Erscheinungsbild prägenden Bruchsteinwände wurden saniert und das Dach erneuert und neu eingedeckt. Im Inneren wurden zwei einfache Holzplattformen eingefügt, die zusätzliche Wohn- und Schlafbereiche schaffen, ohne den Raum zu stark zu zergliedern oder zu verdunkeln. Dadurch, dass die Decke einen Bereich frei lässt, kann das untere Geschoss zusätzlich vom grosszügigen Fenster im oberen Bereich belichtet werden.

Aufgrund der abgelegenen Lage ist das Gebäude nicht an öffentliche Versorgungsnetze angeschlossen. Die Haustechnik wurde bewusst einfach gehalten; die Beheizung erfolgt mittels Holzofen.