Umbau Bauernhaus Stauffenalp

Projektinfo
Baujahr: 1937
Planung: 2021 / 22
Ausführung: 2022 / 23
Auftrag Direktauftrag
Bauherrschaft: privat
Architektur / Bauleitung: Gerry Sterchi
Lorenz Frauchiger
Fotografie: Roland Juker

Ausgangslage

Das Bauernhaus von 1937 ist Teil der Gebäudegruppe Stauffenalp. Sie liegt umringt von einer malerischen Kulturlandschaft im Hinteren Stauffen am südwestliche Abhang der Fuchsegg. Infolge des Pächterwechsels wurde das freistehende Stallgebäude im Jahr 2021 von Grund auf erneuert. In einem zweiten Schritt soll nun das Bauernhaus zu reinen Wohnzwecken umgebaut und modernisiert werden.

Projekt

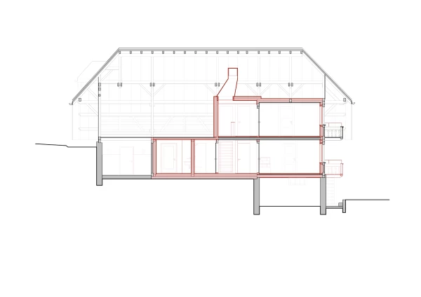
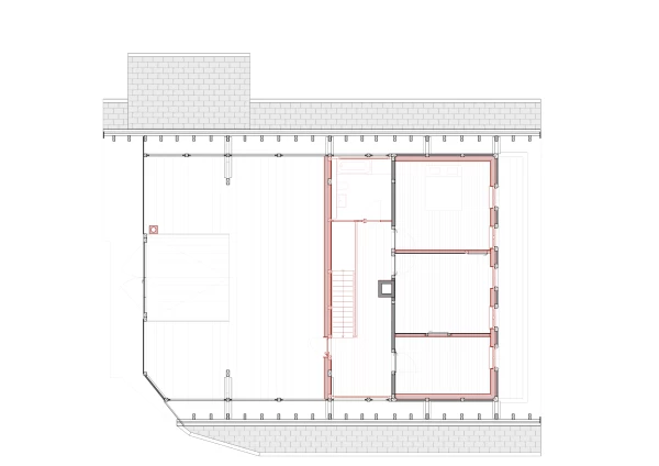
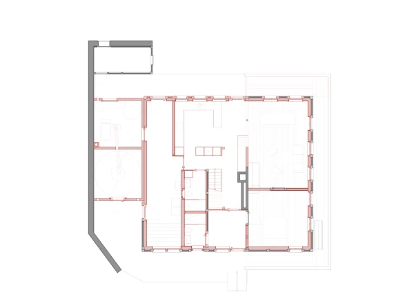
Die klare Gliederung der Wohnräume an der Südfassade konnte erhalten werden. In der mittigen Erschliessungszone liegen die Sanitärräume und die Küche die dank einer grosszügigen Dachverglasung neu zenital belichtet wird. Rückwärtig zum nördlichen Hangbereich wurde die Haustechnik mit Schnitzelheizung und Warmwasseraufbereitung untergebracht. Zur Erhaltung des ursprünglichen Charakters des Bauernhauses wurden die bestehenden Wandtäfer an den Aussenwänden aus- und nach der Aufdämmung der Fassaden wieder eingebaut. Die Strahlreinigung sämtlicher Holzoberflächen mit Nussgranulat führte in den Innenräumen zu einer neuen Frische.