Jubiläumsstrasse 21, Bern

Projektinfo
Baujahr: 1921

Denkmalpflege:

erhaltenswert
Planung: 2020 / 21
Ausführung: 2021 / 22
Auftrag Direktauftrag
Bauherrschaft: privat
Architektur / Bauleitung: Lorenz Frauchiger
Sonja Wille
Fotografie: Roland Juker

Ausgangslage

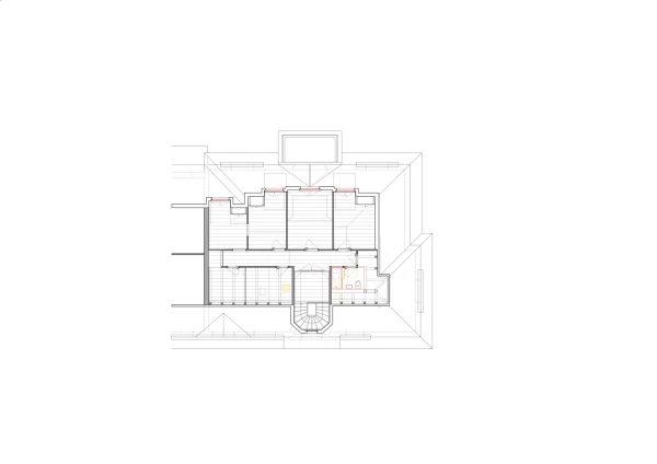
Sieben Reihenmietshäuser in der oberen Jubiläumsstrasse wurden 1921 vom Architekten Friedrich Studer Sohn im vom Heimatstil geprägten Neobarock erbaut und sind als erhaltenswerte „K-Objekte“ im Bauinventar der Stadt Bern aufgeführt. Das Haus Nr. 21 ist das südliche Endhaus der Reihe und verfügt pro Geschoss über eine grosszügige 5-Zimmerwohnung. Der tiefe rückseitige Garten mit Aussicht auf den Dählhölzliwald und die wohl proportionierten, gut belichteten und nutzungsneutralen Räume haben grosse Qualität. Im Gegensatz dazu waren die dienenden Räume und das Treppenhaus beengt.

Projekt

Ziel war es die vorhandenen Qualitäten zu stärken und eine ressourcenschonende Anpassung an heutige Bedürfnisse zu erreichen. Die besondere Charakteristik der Raumstruktur des Hauses ist der Aufbau aus drei verschiedenen Raumschichten – im Kern das Treppenhaus, im Kranz darum angelagert die dienenden Räume jeder Wohnung - Entrée, Küche und Nasszellen - und dreiseitig daran angedokt die Zimmer. Kleine Veränderungen lassen die Raumfolgen grosszügiger erscheinen, leiten Tageslicht bis in den Kern des Hauses und neue Bodenbeläge machen die Raumschichtung von Innen nach Aussen besser ablesbar. 

Ausführung

Nebst der Sanierung der Hülle und der denkmalgerechten Integration einer Photovoltaikanlage stellten die gesetzlichen Auflagen betreffend Schallschutz zwischen den geschossen eine bauliche Herausforderung dar. Sämtliche Bodenbeläge , samt Blindböden und Schüttung, wurden bis auf die Schiebeböden ausgebaut. Die alten Parkettböden konnten aufgearbeitet und wieder eingebaut werden. Dadurch wurde dem Nachhaltigkeitsgedanken Rechnung getragen und die Atmosphäre der Innenräume erhalten.