Bienenforschungszentrum, Posieux

Projektinfo
Offener Projektwettbewerb: 2025
Veranstalterin: Bundesamt Bauten und Logistik, BBL 
Verfasserin:

Simon Gysel

Franca Riva

Platzierung: von Rangierung ausgeschlossen

Nachhaltig bauen am richtigen Ort: 'Bienenaufstockung' ist ein eigenständiger, präziser und ressourcenschonender Neubau als Auftakt zum Campus Agroscope. Das Bienenforschungszentrum ist an die Typologie des Bienenstocks angelehnt und bietet spannende, flexible und attraktive Innen- und Aussenräume mit innovativem Arbeitsumfeld.

Ausgangslage

Die Schweiz verliert jährlich 3'300 ha Agrarland durch Bautätigkeit – eine Gefahr für die Versorgungssicherheit. Angesichts knapper Ressourcen sind innovative Konzepte ohne Bodenverschleiss nötig. Das vorliegende Projekt löst dies durch einen ressourcenschonenden Neubau: Das Bienenforschungszentrum wird als Aufstockung realisiert, statt auf der grünen Wiese. Durch diesen Verzicht auf zusätzlichen Bodenverbrauch der verbunden ist mit aufwändigen Erdarbeiten halbieren sich die Baukosten und reduzieren sich die Emissionen sowie die Bauzeit massiv. Ein präziser Beitrag zum Schutz unserer fruchtbaren Böden im Zeichen der Bienen.

Architektur

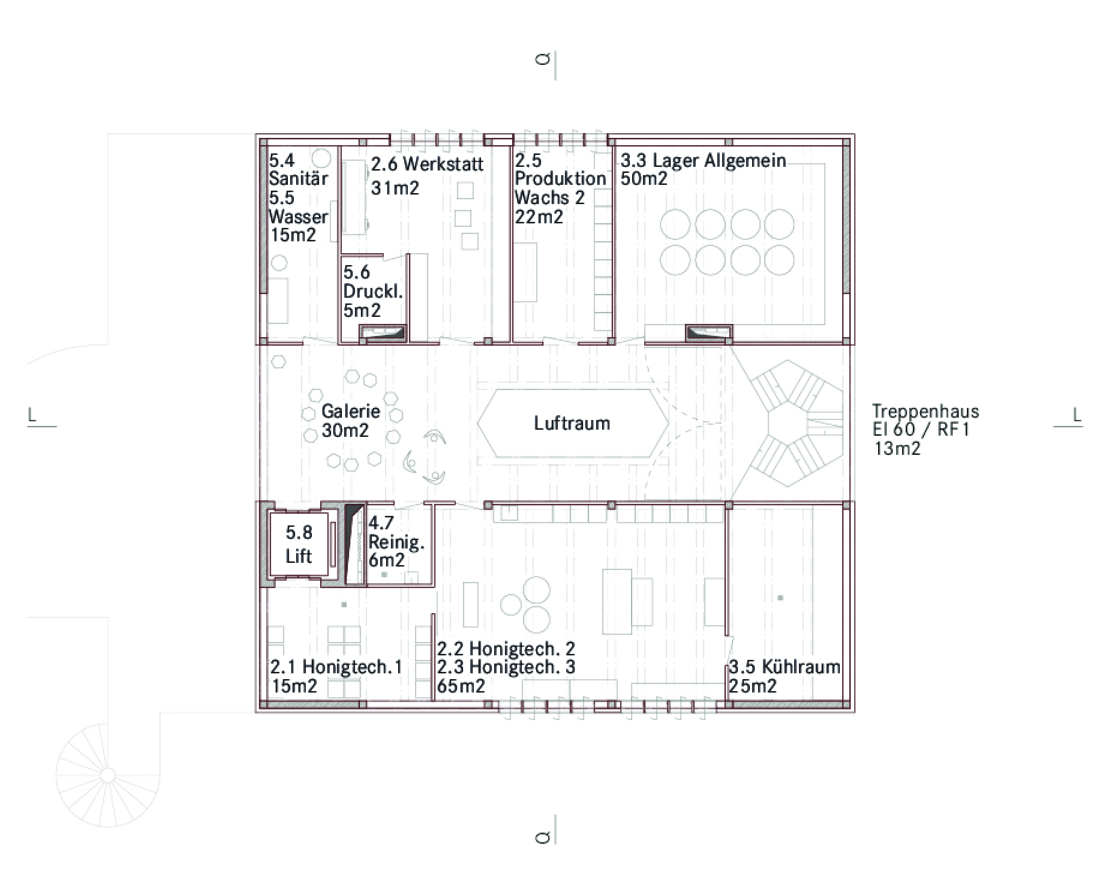
Die Architektur und Raumkomposition des Projekts evozieren Bezüge zum Bienenstock. Der aufgeständerte Holzbau besticht durch horizontale Bänder und eine Fassade aus Re-Use-Solarpaneelen hinter grünem Recyclingglas. Drehbare Kastenfenster beleben das Bild, während vertikale Biodiversitätsflächen aus Stroh den Bau kontrastreich rahmen. Hohe Räume garantieren Nutzungsflexibilität. Herzstück ist die vertikale Raumstruktur: Ein Atrium und eine Treppenanlage schaffen Begegnungsorte und machen das Haus zu einem innovativen Arbeitsplatz – funktional und ästhetisch im Einklang mit der Natur.

Konstruktion

Die erdberührten Arbeiten umfassen vier Fundamente für Betonstützen, die Liftunterfahrt und einzelne Mikropfähle zur Verstärkung der bestehenden Stützmauer. Die robusten Bauteile im Erdgeschoss sind kraftschlüssig mit ihr verbunden, erfüllen das Schwingungskriterium VC-A und tragen die Holz-Beton-Verbundkonstruktion. Diese ist leicht, aufstockbar bis zur Gebäudehöhe CA und wird südlich über Brüstungsträger sowie die Decke über dem Unterstand abgefangen. Alle Verbindungen sind kreislauffähig.