Sanierung Kita Mett, Biel

Projektinfo
Studienauftrag im selektiven Verfahren: 2023
Veranstalterin: Stadt Biel

Architekur:

 

 

Bauphysik:

Brandschutzplanung:

Franca Riva
Sonja Wille
Stefan Gysel
Martin Zulauf

Bau N GmbH

Indermühle Bauingenieure

Platzierung: zur Weiterbearbeitung empfohlen

Ausgangslage


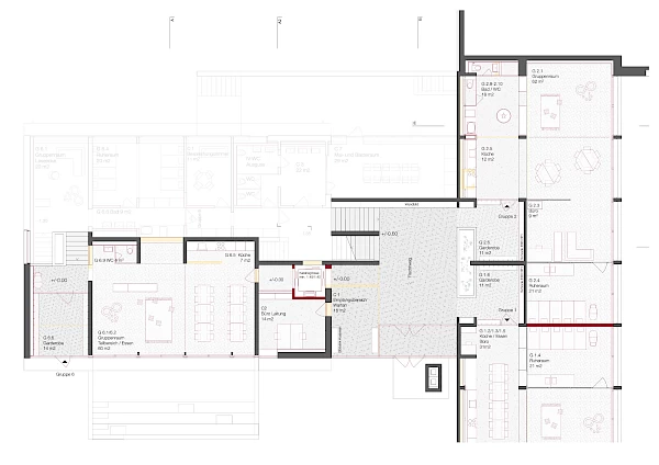
Die Kita Mett wurde 1961 durch die Architekten Flurin und Pia Andry-Giauque als zweite öffentliche Kinderkrippe in Biel erbaut. Heute wird sie durch sechs Kita-Gruppen intensiv genutzt, was im Bereich Erschliessung und Brandschutz zu Problemen geführt hat. Im Studienauftrag waren Sanierungslösungen gesucht, welche eine moderne Pädagogik unterstützen, dem hohen architektonischen Wert der Anlage gerecht werden und die Vorschriften in Bezug auf Energie, Brandschutz und Hindernisfreiheit erfüllt.

Projekt


Das Projekt "Arc en Ciel" behebt pragmatisch und kostenoptimiert sämtliche funktionalen Mängel während das Gebäude in seiner Substanz, seinem eigenwilligen Charakter und seiner schönen Setzung ins Terrain belassen wird. Knackpunkt der Sanierung ist der Nordflügel wo die Räume kleinteilig, die Erschliessung unklar und eine Kita-Gruppe in unvorteilhaften Räumen untergebracht war. Hier erfolgt der gezielte Eingriff mit dem Lifteinbau und räumlicher Optimierung auf allen Etagen. Ökologisch leistet das Projekt durch einen maximalen Erhalt des Bestandes einen wichtigen Beitrag.