Trifthütte SAC, Gadmertal

Projektinfo
Projektwettbewerb im Einladungsverfahren: 2023
Veranstalterin: SAC Sektion Bern
Verfasserin:

Joris Rothenbühler

Jennifer Sigel

Simon Gysel

Lorenz Frauchiger

Platzierung: 1.Rang

Ausgangslage

Die Trifthütte wurde vor über 150 Jahren als eine der ersten Hütten des Schweizer Alpen-Clubs im Gadmertal erbaut und 2021 durch einen Lawinenniedergang stark beschädigt. Darauf wurde ein Ersatzneubau an sicherer Lage beschlossen. Das Projekt orientiert sich an traditionellen Alphütten und ihrem Umgang mit Topografie, Klima und Naturgefahren. Das Gebäude fügt sich auf einem schmalen Felsgrat auf 2420 m ü. M. präzise in die Landschaft ein. Die Hütte bietet Sommer wie Winter einen idealen Ausgangspunkt für Touren und einen gemütlichen Aufenthaltsort in rauer Berglandschaft.

Architektur

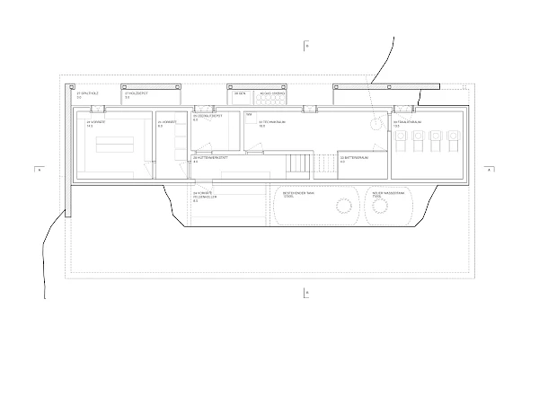
Der Zugang erfolgt über die windgeschützte Terrasse auf der Südostseite via gedeckten Vorbereich zum zentralen Empfang. Von hier aus gelangt man zum Aufenthaltsraum, dessen Panoramafenster sich zu Gletscher, Gebirge und Tal öffnen, sowie dem Schuh- und Trockenraum und zur hellen Treppe mit Zenitallicht. Diese führt zum Schlafgeschoss im Dach mit kompakten Zimmern, einem Besprechungsraum und der Wohnung des Hüttenwartteams. Küche und Theke liegen nördlich und bilden mit Verbindung zu den Betriebsräumen im Untergeschoss das funktionale Rückgrat der Hütte.

Konstruktion

Die Hütte ist mit einem halbseitigen Unterbau nahtlos in das Gelände eingepasst, so dass die Eingriffe im Aussenraum auf ein Minimum reduziert werden. Lediglich die erdberührten Bauteile werden in Beton materialisiert,  die oberirdische Struktur besteht aus Holzelementen. Die Steine aus dem Abbruch der alten Hütte werden zur Erstellung der Bruchsteinfassaden, des Sockelbereichs und für den Terrassenboden genutzt. Es entsteht eine zweckmässige, nachhaltige SAC-Hütte in Bau und Betrieb.