Wohnbaugenossenschaft Feuerwehr Viktoria

Projektinfo

 

Eingeladener Projektwettbewerb: 2021
Veranstalterin: Genossenschaft Alte Feuerwehr Viktoria

Architektur:

 

 

 

 

Statik:
Fotografie:

Alexander Barina - Studio Barina

Simon Gysel

Lorenz Frauchiger

Sonja Wille

Stefan Gysel

Timbatec AG
Roland Juker

Platzierung: 3. Rang, 3. Preis

Ausgangslage

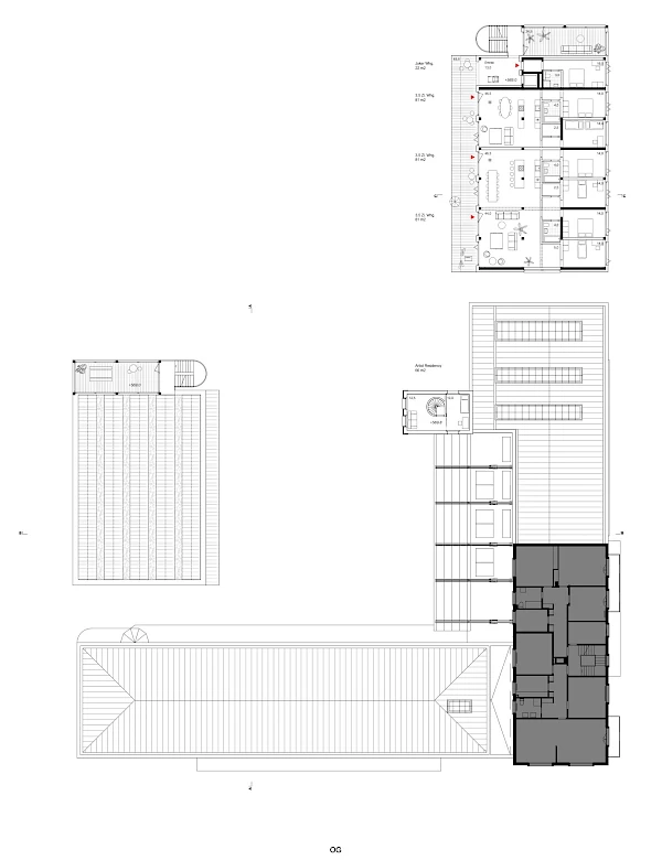
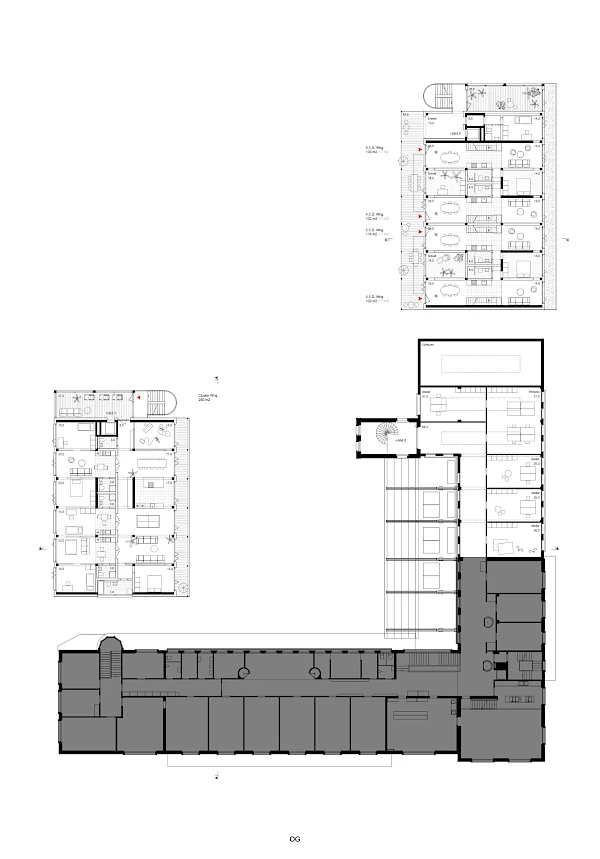
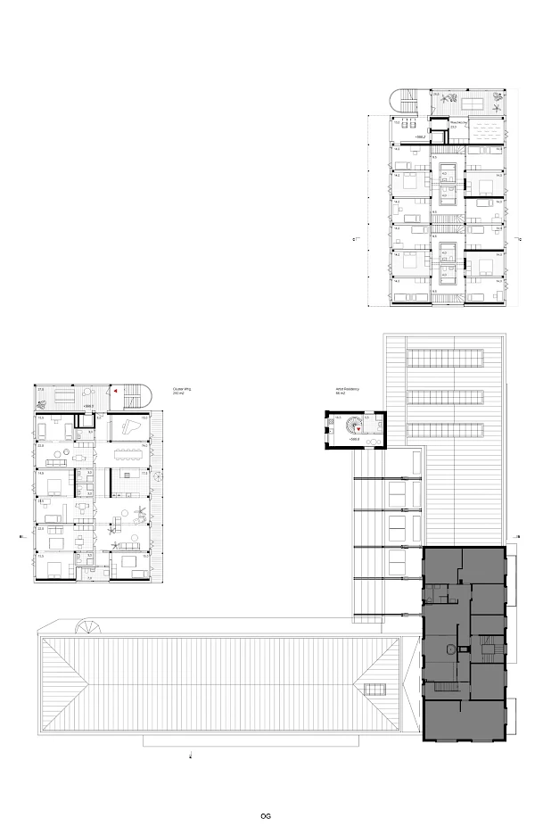
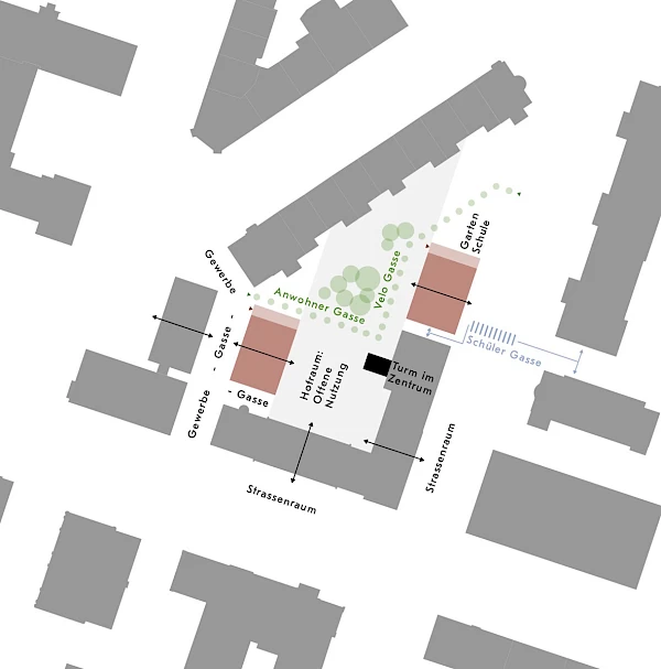
Das Projekt «Ost-West» ergänzt das bestehende Areal durch zwei präzise gesetzte Neubauten, die den denkmalgeschützten Bestand respektieren und das Quartier aufwerten. Mit klarer Formensprache entsteht ein Weiterbauen im Geist der alten Feuerwehr. Die Neubauten strukturieren Hof und Umgebung neu, stärken den Turm als Zentrum und schaffen eine neue Verbindung zum Quartier. So entsteht ein durchlässiger Stadtbaustein mit klar zoniertem, vielseitig nutzbarem Hof und optimaler Ost-West-Ausrichtung.

Projekt

Mit grosser Sorgfalt wird auf den denkmalgeschützten Bestand reagiert. Materialität, Proportionen und Farbigkeit der Neubauten orientieren sich an der Feuerwehr Viktoria. Betonung der Baukörper, eingeschnittene Lochfenster und additive Elemente schaffen mit einfachen Mitteln ein stimmiges Ganzes, das Bestand und Neubau verbindet. Der Saalbau ergänzte die alte Feuerwehr wertvoll und dient in seiner Einfachheit als Vorbild für den Ersatzbau. Dessen neue Volumen respektieren das baukulturelle Erbe und machen den Bestand wieder als freie Komposition lesbar. Zwei neue Bauten fügen sich harmonisch ein und bleiben doch eigenständig.