Seniorenzentrum Schüpfen

Projektinfo
Öffentlicher Wettbewerb: 2013
Veranstaltende: Gemeindeverband Altersheim Schüpfen
Hauptnutzfläche HNF: 4’560 m2
Architektur / Bauleitung: Lorenz Frauchiger
Stefan Gysel
Simon Gysel
Felix Dechert
Platzierung: 4. Rang

 

Scuphon

 

Städtebau

Das bauliche Umfeld des Seniorenzentrums wird im Norden von kleinteiligen Wohnhäusern und im Süden von grösseren Wirtschaftsgebäuden geprägt. Die Umgebung bietet mit dem Chüelibach und einer üppigen Flora einen Grüngürtel mit hoher Qualität. Die Landschaft ist geprägt vom ansteigenden Terrain gegen Süden und der landwirtschaftlichen Nutzung. Die ortsbauliche Eingliederung des Neubaus wird durch einen Rücksprung vom Chüelibach und die Ausrichtung entlang der bestehenden Zufahrt erreicht. Die Aussenraumgestaltung  respektiert die bestehenden Qualitäten und erweitert diese im Westen durch einen Gehweg um den Neubau mit einem von Bäumen eingerahmten Sitzplatz am südwestlichen Ende der Parzelle. Die Erschliessung des Seniorenzentrums geht mit dem bestehenden Wegnetz einher und gibt dem Wohnbereich eine eigene Adresse im System der Anlage. Dies ermöglicht sowohl ein persönliches Ankommen als auch kurze Wege innerhalb der Anlage.

 

Alters- und Pflegeheim

Das Alters- und Pflegeheim bildet ein architektonisch starkes Ensemble. Nach eingehender Studie der geforderten Rahmenbedingungen für einen optimierten Betrieb kommt man zum Schluss, dass die bestehenden Gebäude mittels Umbauten den Ansprüchen gerecht werden können. Die Aufstockung des Nordflügels mittels präfabrizietem Holzelementbau erlaubt eine kurze Bauzeit im bewohnten Bereich des Heims und schliesst sich sowohl technisch wie auch betrieblich optimal an das bestehende Heim an. Im Erdgeschoss wird der Wirtschaftstrakt und der Speisesaal reorganisiert und bietet Raum für die jeweiligen Nutzungen und kurze Wege für den Betrieb. Das Heimleiterhaus bietet dem Personal Büro und Besprechungsräume die von der Aussicht und dem Garten profitieren.

 

Alterswohnungen

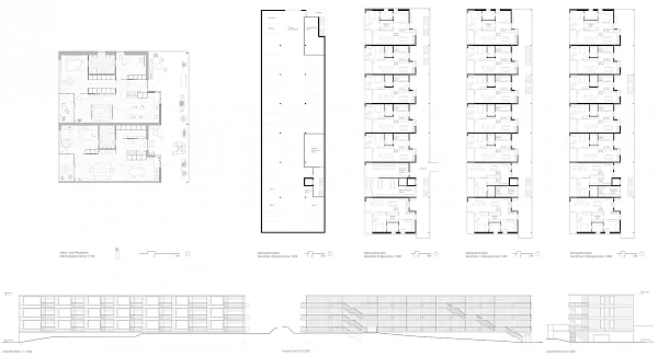
Der Neubau bildet den Auftakt des Gebäudeensembles und beinhaltet nebst den Alterswohnungen die Parkgarage. Dank der Hanglage kann auf einen aufwendigen Aushub für die Garage weitgehend verzichtet werden. In den Obergeschossen entstehen Wohnungen die sowohl dem Anspruch an Privatssphäre als auch dem Bedürfnis nach Gemeinschaft Rechnung tragen. Die Erschliessung bietet einen abgestuften Halböffentlichen Bereich mit  einer Kaskadentreppe und Nischen bei den Wohnungseingängen. Innerhalb der Wohnungen sorgen Raumbezüge und ein Wegangebot für ein interessantes Wohnerlebnis.

 

Zusätzliche Pflegegruppe

Die Vorteile der Aufstockung des bestehenden Nordflügels des Altersheims sind neben wirtschaftlicher auch architektonischer Natur. Die abgebildeten Raumsequenzen der zusätzlichen Pflegegruppe zeigen die Ein- und Aussichten der Bewohner. Während jedes Zimmer  dank der Lage im dritten Geschoss  von einer unverbauten Aussicht profitiert, können die gemeinschaftlichen Räume mit oblichtern belichtet werden. Der Mittelgang verfügt über Nischen die als zusätzliche Wohnfläche benutzt werden können und somit den gemeinsamen Wohn- und Essbereich ergänzen.