Schule Depotstrasse, Bern

Projektinfo
Öffentlicher Wettbewerb: 2014
Veranstalterin: Stadtbauten Bern
Geschossfläche GF SIA 416: 1’040 m2
Gebäudevolumen SIA 416: 3’660 m3
Verfasser: Stefan Gysel
Lorenz Frauchiger
Reinhard Briner
Simon Gysel
Felix Dechert
Plazierung: 3. Preis

 

Luege Lose Loufe

 

Aussenräume

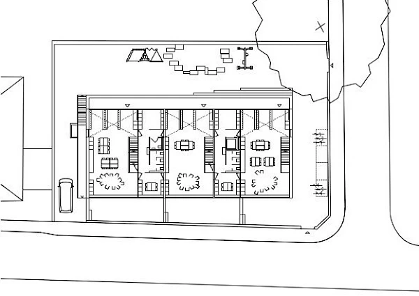
Durch die Bebauung an der Baulinie im Südwesten bleibt im Nordosten ein Aussenspielplatz für die drei Basisstufen mit direkter, behindertengerechter Anbindung an diese. Als Ergänzung zu diesem halböffentlichen Spielbereich wird jeder Basisstufe eine eigene Terrasse mit Ausrichtung nach Süden zur Verfügung gestellt. In Kombination entsteht so ein Angebot, welches eine gewisse Bewegungsfreiheit für die Nutzer zulässt und die Vielgestaltigkeit der inneren Organisation unterstützt. Die Einfriedung der Parzelle bleibt als Teil der Quartierintegration wie bis anhin bestehen.

 

Organisation und Nutzung

Die beiden Nutzungen Tagesschule und Basisstufe werden in einem Bauvolumen vereint, doch nutzungsmässig klar getrennt. Das Grundkonzept beruht auf separaten Eingängen für alle Bereiche. Das heisst, jede Basisstufeneinheit wie auch die Tagesschule funktionieren autonom. Erschlossen über die Depotstrasse befindet sich die Tagesschule im Erdgeschoss mit grosszügigem Eingangs- und Garderobenbereich und den Hauptnutzräumen entlang der Südfassade. Rückwärtig gegen Norden befinden sich am Korridor mit Anbindung an die Schulräume im Obergeschoss die Nebenräume für alle Nutzungen. Über den Aussenraum von der Muesmattstrasse erschlossen befinden sich die drei Zugänge zu den Basisstufe. Jede Einheit verfügt über einen eigenen Garderobenbereich, einen Hauptraum mit integrierter Küche sowie über eine mittels interner Treppe erschlossene Galerie und eine Dachterrasse gegen Süden. Dieses Raumgefüge erlaubt eine individuelle und vielgestaltige Nutzung und bietet so Geborgenheit sowohl für das Lehrpersonal als auch für die Kinder. Zusammen mit dem privaten Aussenraum gegen Süden und dem gemeinsamen Aussenspielbereich im Norden ergeben sich so für die drei Basisstufen unterschiedlichste Nutzungs- und Ausweichmöglichkeiten auf verschiedenen Ebenen. Die Nutzungsverteilung auf den zwei Geschossen bleibt übersichtlich und erlaubt getrenntes gruppenspezifisches Arbeiten an verschiedenen Orten.

 

Architektur

Die innere Organisation prägt den Gebäudeausdruck des Schulgebäudes von Grund auf. Die klare Nutzungstrennung zwischen den Basisstufen und der Tagesschule gliedert die Fassade klar in einen Sockelbereich und in die Obergeschosse. Selbstredend werden für diese zwei Bereiche auch unterschiedliche Konstruktionen gewählt, die optimal auf die spezifischen Anforderungen reagieren. So zeigt sich das Erdgeschoss für die Tagesschule als massiver Sockelbau in Sichtbeton mit offener Südfassade als solide Basis für die drei Schuleinheiten in den oberen Geschossen. Diese drei Einheiten manifestieren sich als drei Einzelvolumen in der umliegenden Dachlandschaft. Als klar erkennbare Ausnahme zu den umgebenden Wohnhäusern schlagen sie so eine Brücke zu den übrigen Schulbauten im Quartier. Der bewusste Einsatz von naturbelassenen Fassadenmaterialien unterstützt diese Absicht noch zusätzlich.

 

Konstruktion, Gebäudetechnik

Die Konstruktion des Gebäudes folgt der Logik unterschiedlicher Anforderungen. So werden die erdberührten Aussenwände, die Bodenplatte zusammen mit den aussteifenden Kernen und die schalldämmende Decke zwischen Tagesschule und Basisstufe in Beton und die übrigen Teile als Holzkonstruktion ausgeführt. Die differenzierte Konstruktion nimmt Rücksicht auf die gebäudestatischen Anforderungen, verspricht eine effiziente und schnelle Bauweise und lässt einen hohen Vorfertigungsgrad zu. Die hochgedämmte Gebäudehülle setzt den Grundstein für eine energieffiziente Nutzung des Gebäudes. Zusammen mit der kontrollierten Lüftung, einer Abluftwärmepumpe und einem Erdregister unter dem Baukörper werden die Voraussetzungen zu einem Niedrigenergiehaus nach den Kriterien von MINERGIE-P ECO geschaffen.