Schwalbenweg 24, Bern

Projektinfo
Baujahr: 1872/73

Denkmalpflege:

beachtenswert

Planung: 2020/21
Ausführung: 2021/22
Auftrag Direktauftrag
Architektur / Bauleitung: Simon Gysel
Stefan Gysel
Architekturfotografie: Roland Juker
Bauherrschaft: Privat

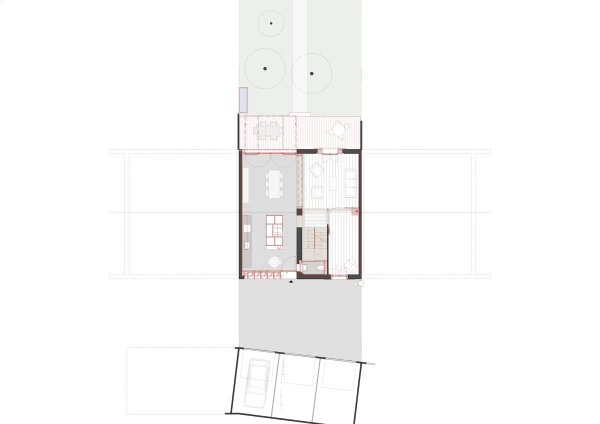
Ausgangslage

An der Stadtkante der Länggasse zum Bremgartenwald stehen die zweigeschossigen Reihenhäuser am Schwalbenweg 2–32, erbaut 1872 von Probst & Kissling Architekten, in drei Gruppen zu je sechs Häusern. Sie bilden ein langgezogenes Ensemble einer typischen, idyllischen Arbeitersiedlung des 19. Jahrhunderts. Lisenen gliedern die Einheiten, Kunststeingewände rahmen Fenster und Türen. Die Zeilenhäuser grenzen strassenseitig an den öffentlichen Raum und verfügen rückseitig über tiefe Gartenparzellen, die wesentlich zur hohen räumlichen Qualität beitragen. Das Haus Nr. 24 lag ursprünglich an einer der beiden Querverbindungen zwischen Schwalben- und Forstweg, die im Laufe der Zeit mit Brunnen, Pergolen oder Garagen überbaut wurden.

Konzept

Mit dem Umbau von Haus 24 wurde diese Transformation des Zwischenraums fortgeführt, indem die ehemalige Garage dem Wohnbereich angegliedert wurde. Formal durch den geschliffenen Unterlagsboden und räumlich durch die überhohe Figur bleibt die Eigenständigkeit des Raums spürbar, während neue Öffnungen dem kleinen Haus eine unerwartete Grosszügigkeit verleihen.

Ausführung

Holzlamellen schaffen einen Filter zwischen Schwalbenweg und der neuen Küche in der früheren Garage. Über ein kleines Entrée mit Garderobe betritt man den Raum. Der alte Boden wich einem gedämmten Aufbau. Zwei Stufen führen ins leicht erhöhte Wohnzimmer mit Nische und Bibliothek. Eine Terrasse aus Douglasie verbindet das Haus mit dem Garten. Die bestehende Treppe erschliesst das Tages-WC und die Schlafräume im Obergeschoss. Das ehemalige Kinderzimmer wurde zum Bad mit Einbauschrank umgestaltet, der beidseitig zugänglich ist. Über der einstigen Garage entstand eine Dachterrasse. Unter dem neuen Dach bieten zwei elegante Lukarnen und ein grosszügiger Dachraum Platz für das Homeoffice.