Heilpädagogische Schule, Bern

Projektinfo
Öffentlicher Wettbewerb: 2018
Veranstalterin: Hochbau Stadt Bern
Verfasser:

Marc Bühler
Lorenz Frauchiger
Simon Gysel
Larissa Loretan
Joris Rothenbühler

Visualisierungen: Susann Bühlmann
Landschaftsarchitekt: Riggenbach GmbH
Platzierung: 3. Rang, 3. Preis

 

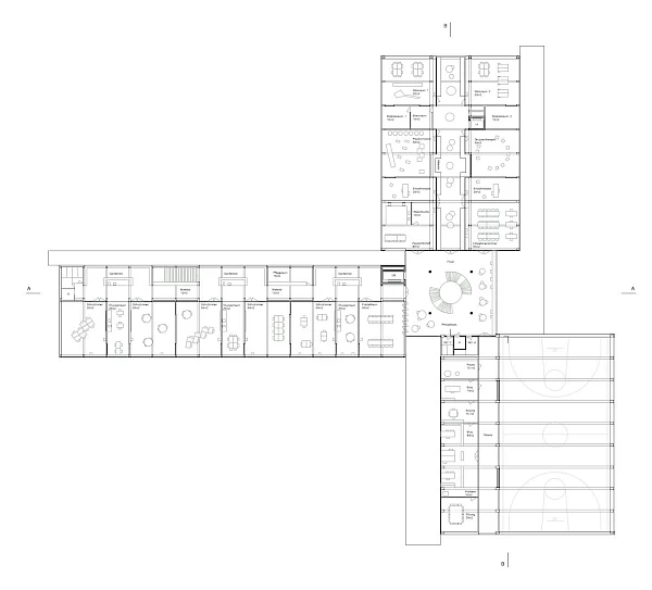
Drei Gärten

 

Quartierintegration – übergeordnetes Ganzes

Das Projekt „Drei Gärten“ besticht durch eine präzise Setzung der Bauvolumen und der daraus resultierenden wohl proportionierten und gut nutzbaren Aussenräume.

Die neue Heilpädagogische Schule schlägt am vorgesehenen Standort eine gebäudetypologische Brücke zu der bestehenden Schulanlagen von Hans Brechbühler im Nordosten. Die markante Stellung der Turnhalle an der Kreuzung Morgenstrasse – Statthalterstrasse ist sowohl Ankerpunkt der neuen Schulanlage als auch räumliche Definition des Rasenspielfeldes entlang der Morgenstrasse im Südwesten. Die stark ausformulierten Erschliessungsbauten der Statthalterschule werden als gemeinsames Merkmal übernommen und beim Neubau der Heilpädagogischen Schule neu interpretiert und ausformuliert: Drei breite, wettergeschützte und öffentlich zugängliche Lauben empfangen die Ankommenden. Diese einheitliche Typologie von Alt und Neu sowie die klar zugeordneten Aussenräume lassen im Quartier eine Schulinsel entstehen, die durch ihren übergeordneten Zusammenhalt eine erlebbare Einheit bildet und so ihre Berechtigung im Statdtgefüge festigt.

 

Drei Gärten – Eine Schule

Der windmühlenartig gegliederte Baukörper schafft drei Aussenräume unterschiedlicher Prägung – ‚drei Gärten’– auf dem Grundstück. Nach Norden, an der Statthalterstrasse und mit Bezug zur bestehenden Schulanlage, liegt der übersichtliche Vorplatz, welcher als Erschliessungsraum für Veranstaltungen und als Ankunftsort für Kinder und Lehrer dient. Nach Südosten, zur Morgenstrasse hin, entsteht ein grosszügiger Freiraum, der die Gartenzimmer der Eingangsstufe sowie den Allwetterplatz beinhaltet und der durch die strassenbegleitende Baumreihe eine angemessene räumliche Abgrenzung von der Strasse erhält. Nach Sudwesten, zu den Wohnhäusern an der Wangenstrasse, wird ein gartenähnlicher Pausenhof mit unterschiedlichen Spiel- und Erfahrungsmöglichkeiten geschaffen.

Der alte Baumbestand und die neu gepflanzten Bäume säumen als schöner Grünfilter den Perimeter und bilden im Zusammenspiel mit der niedrigen Schule eine parkartige Situation. Ein ausgewogenes Verhältnis zwischen Begegnungsorten und Rückzugsmöglichkeiten strukturiert die drei Gärten als einladende und geschützte Welt für Kinder. Die Schulanlage bietet Anreize, das selbständige Arbeiten mit der Umwelt zu fördern. Der Entwurf zeigt eine Umgebung mit «Wohnraum-Qualitat»..