Fausterhaus, Spiez

Projektinfo
Projektwettbewerb: 2010
Veranstalterin: Einwohnergemeinde Spiez
Geschossfläche GF SIA 416: 1’936 m2
Nutzfläche NF: 1’573 m2
Gebäudevolumen SIA 416: 7’610 m3
Verfasser: Lorenz Frauchiger
Stefan Gysel
Simon Gysel

 

Fausterhaus – Ersatz

Am Fusse der Sunnefels Rebberge bildet das Fausterhaus den Auftakt zum Gebäudeensemble der ehemaligen Nervenklinik. Der  Erhaltenswert begründet sich wesentlich durch den Situationswert als Gebäude in der gestalterisch klaren Unterordnung zum Hauptbau. Das gegebene Raumprogramm erfordert mehr als das doppelte des vorhandenen Volumens. Statt der Erhaltung wird hier deshalb ein situationsgerechter Ersatz des Fausterhauses mit einer adäquat qualitätvollen Neuinterpretation vorgeschlagen.

 

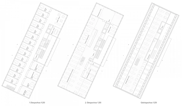
Unter einem Dach

Das markante Dach des Neubaus beherbergt die Bibliothek auf zwei Geschossen (Galerie). Diese Anordnung unter den Dachschrägen ermöglicht eine gute Übersicht und eine einfache Orientierung in den Räumlichkeiten. Ein zentrales Oblichtband sorgt für helle Arbeitsplätze, eine gute Raumausleuchtung und unterstreicht den Charakter des Dachraumes als Ort der Ruhe und des Lernens. Ebenfalls über den zentralen Eingang sind die Verwaltungsräume sowie die Ludothek im Erdgeschoss vom Vorplatz erreichbar. Die Anordnung der drei unterschiedlichen Nutzungen in einem Gebäude leitet sich aus der historisch gewachsenen Situation ab. Gleichzeitig fördert sie den allgemeinen Austausch und die sozialen Kontakte aller NutzerInnen. Der gemeinsame Vorraum mit kleiner Cafeteria unterstützt dies noch zusätzlich.