3-fach Kindergarten Kreuzfeld, Langenthal

Projektinfo
Offener Projektwettbewerb: 2021
Veranstalterin: Stadt Langenthal

Architektur:
Landschaftsarchitektur:
Statik:
Bauphysik:

Franca Riva
Luzius Saurer
WAM Ingenieure AG
Weber Bauphysik AG

Platzierung: 1. Rang

Ende 2023 hat die Stimmbevölkerung der Stadt Langenthal den Baukredit abgelehnt.

Somit wurde das Projekt nach der Planungsphase eingestellt.

Ausgangslage

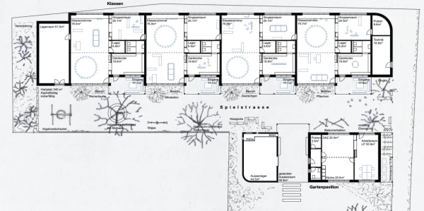
Die Stadt Langenthal schrieb 2021 einen offenen Projektwettbewerb für den Neubau eines dreifachen Kindergartens mit möglicher Erweiterung um eine vierte Einheit auf dem südlich des Schulzentrums Kreuzfeld gelegenen, L-förmigen Areal aus. Dieses bildet den Übergang zum Wohnquartier und umfasst einen neuen Verbindungsweg von der Bleichestrasse zum Pausenplatz der Primarschule.

Projekt

Der Kindergarten steht für das Kind am Übergang von einer familienbezogenen Welt zum Leben in der grösseren Gemeinschaft der Schule. Behutsame Übergänge und die Selbstständigkeit des Kindes stehen im Zentrum des Projekts Frühling – Sommer – Herbst – Winter. Die Klassenräume sind wie Reihenhäuschen aneinandergereiht und bilden einen langen Baukörper, vor dem die Spielstrasse liegt. Ein Gartenpavillon mit den gemeinschaftlichen Bereichen, der Küche und dem Lehrerzimmer bildet das Vis-à-vis zum Klassentrakt. Das kleine Gebäude vermittelt den Übergang von den grossen Schulgebäuden zu den Einfamilienhäusern an der Bleichestrasse. Ein grosszügig überdachter Aussenraum stellt die Verbindung zum Garten her.

Ausführung

Das Tragwerk ist ab der Bodenplatte in Holzbauweise konzipiert. Die Decken bestehen aus einer Balkenlage in Brettschichtholz mit einer Dreischichtplatte als Dachschalung. Die Aussenwände sind als vorfabrizierte Holzelemente ausgeführt, während die Innenwände aus tragenden Holzstützen bestehen, die teilweise mit Lehmsteinen ausgefacht sind. Mit der einfachen und streng repetitiven Holzkonstruktion wird ein hohes Mass an Vorfertigung und damit eine wirtschaftliche Bauweise ermöglicht.